반응형
안녕하세요 투시도 전문 프리랜서 아이비씨지 입니다.
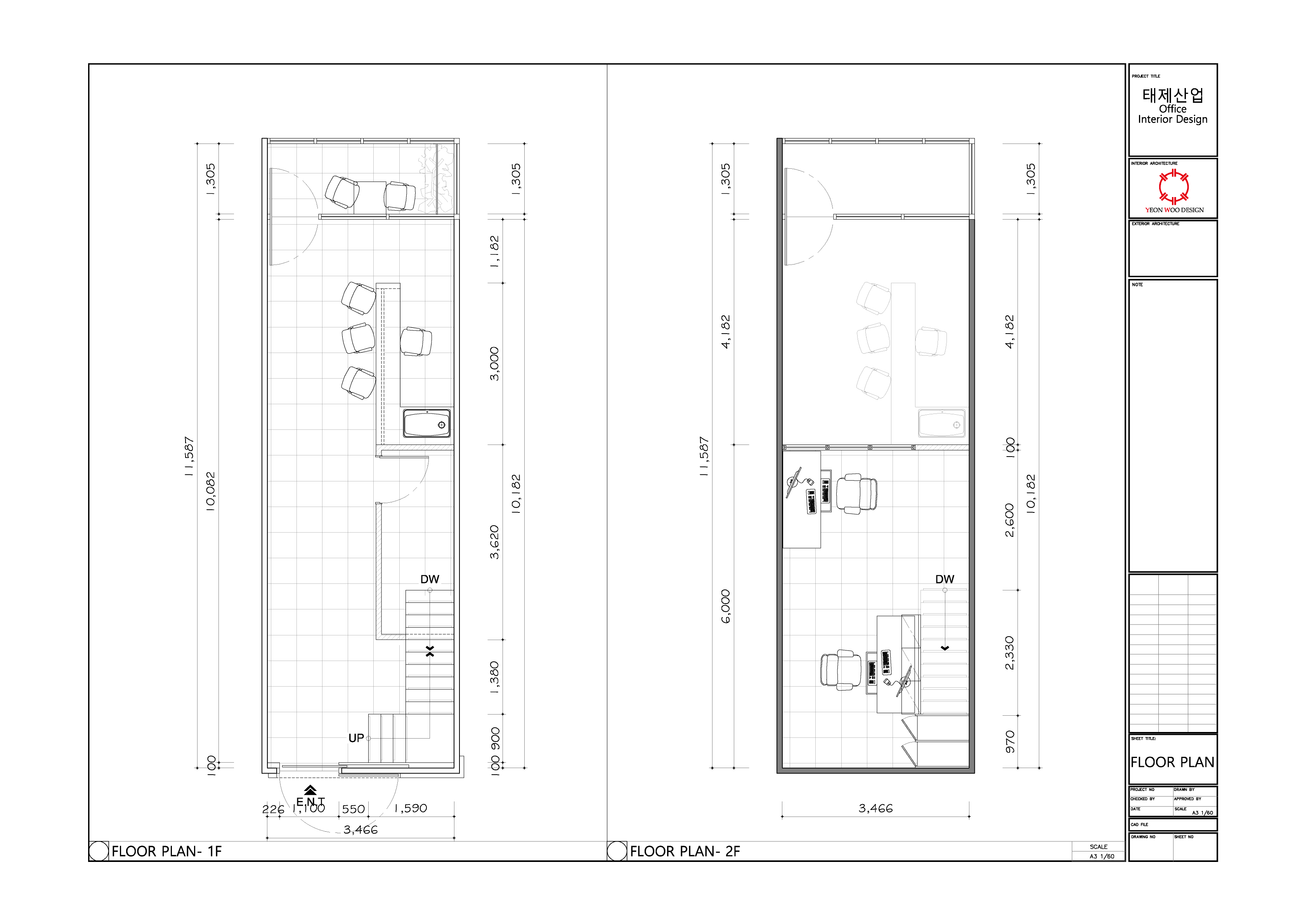
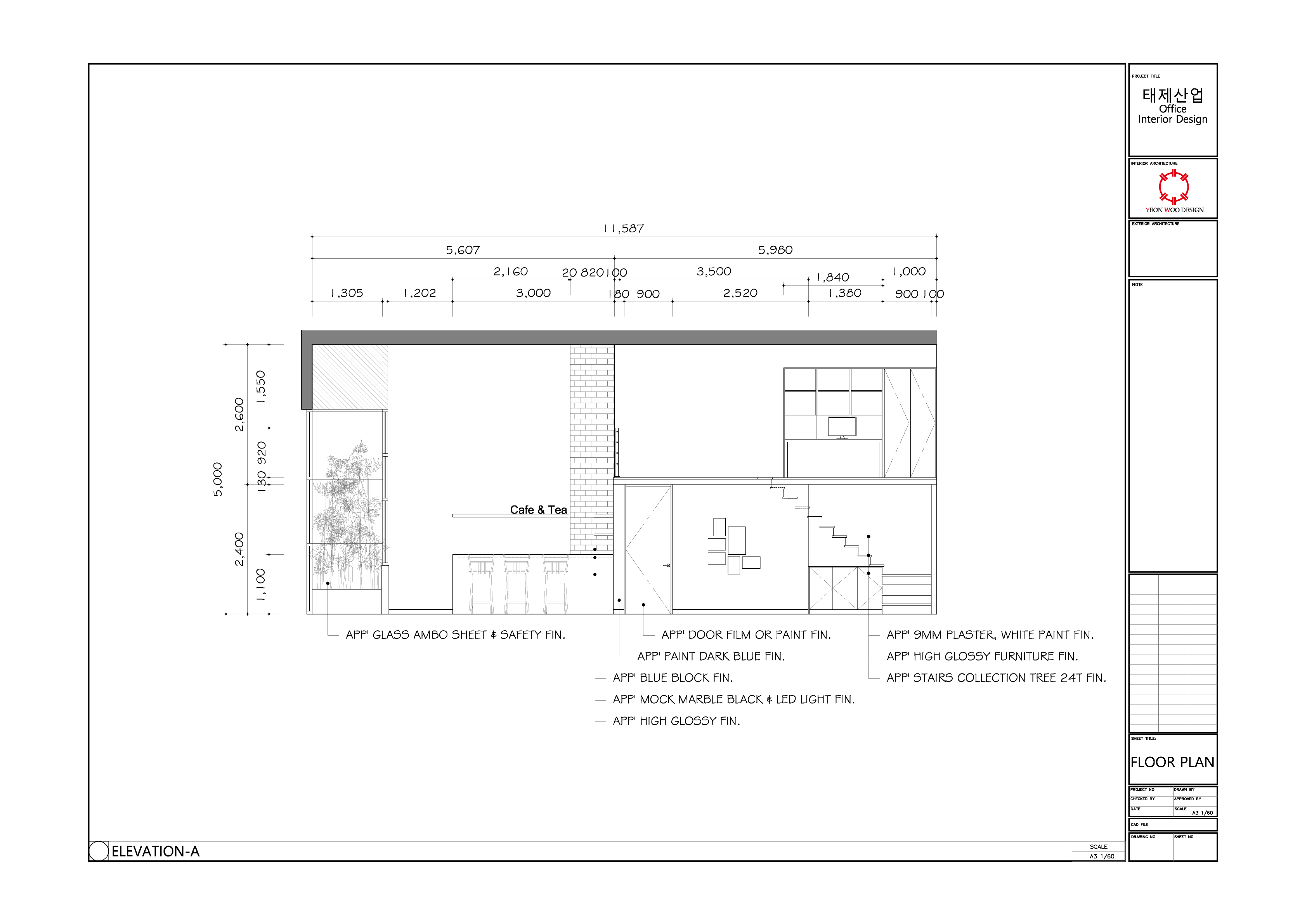
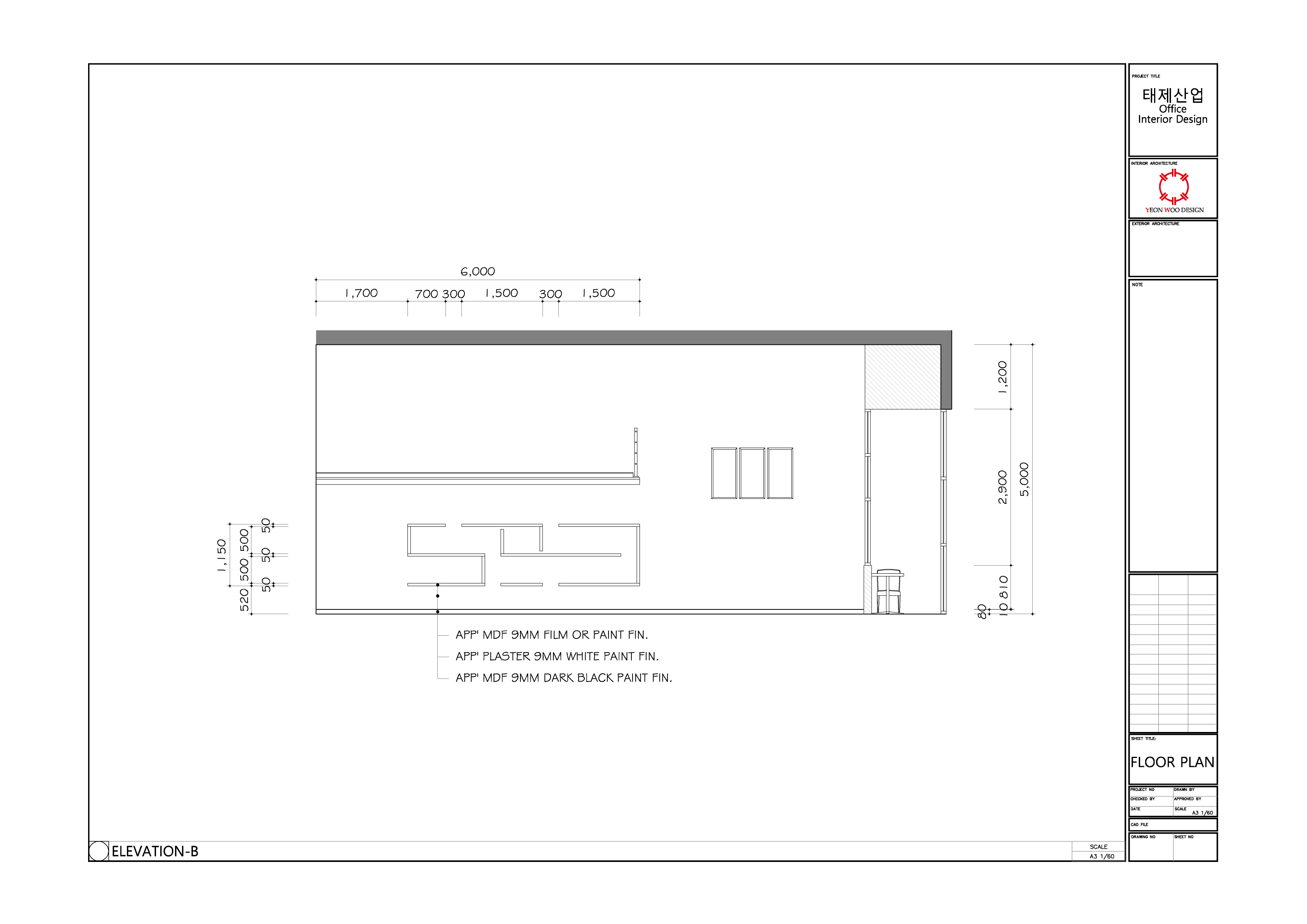
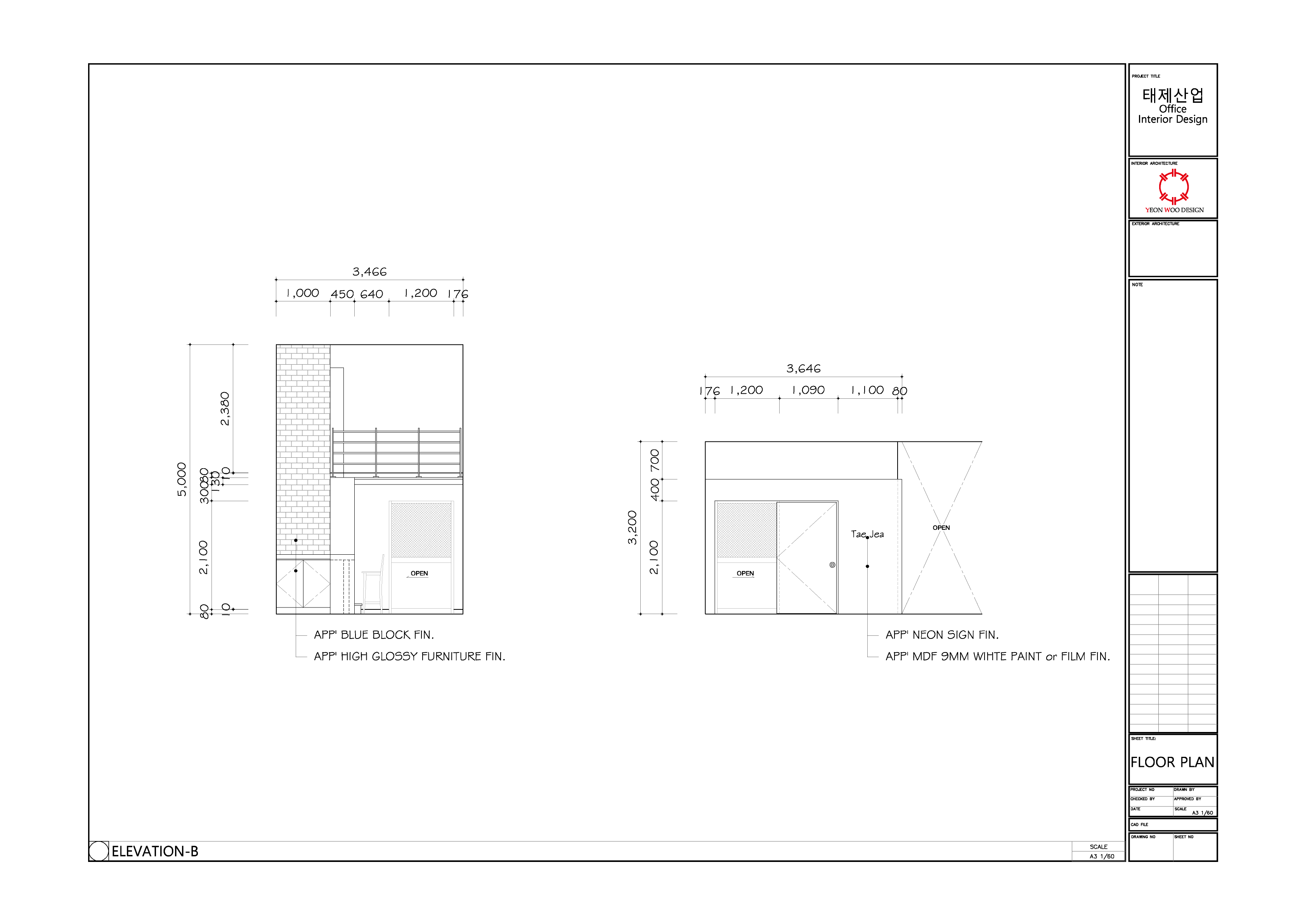
도면 작업을 의뢰 하실때 진행방향에 설명 드리겠습니다.
첫번째, 손으로 도면을 그리시고 치수와 도어와 창문위치를 그리신 후 단면으로 창문 바닥에서 얼마나 올라왔는지
두번째, 사진을 첨부하여 주세요 현장사진을 둘러 보고 부족한 부분을 채우기 위한 것도 있습니다.
세번째, 투시도를 진행 하시려면 창문쪽에서 바깥쪽 뷰도 첨부해주시면 투시도 그리기에는 더 좋은 퀄리티로 만들어
들일수 있습니다.




'2D Design > Floor plan' 카테고리의 다른 글
| Cafe Interior Floor Plan 도면 프리랜서 (1) | 2021.05.25 |
|---|---|
| 비즈니스센터 소형사무실 도면 (0) | 2021.05.21 |
| 쌍용자동차 차량 전시대 인테리어 투시도 (0) | 2021.05.14 |