반응형
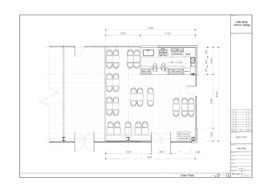
안녕하세요 투시도 프리랜서 Ivy CG 입니다.
어제 올린 투시도에 대한 도면 작업을 진행한것 입니다.
평면도 작업진행입니다.

'2D Design > Floor plan' 카테고리의 다른 글
| 비즈니스센터 소형사무실 도면 (0) | 2021.05.21 |
|---|---|
| 쌍용자동차 차량 전시대 인테리어 투시도 (0) | 2021.05.14 |
| 원룸형 오피스 인테리어 디자인 작업 도면 (0) | 2021.05.11 |
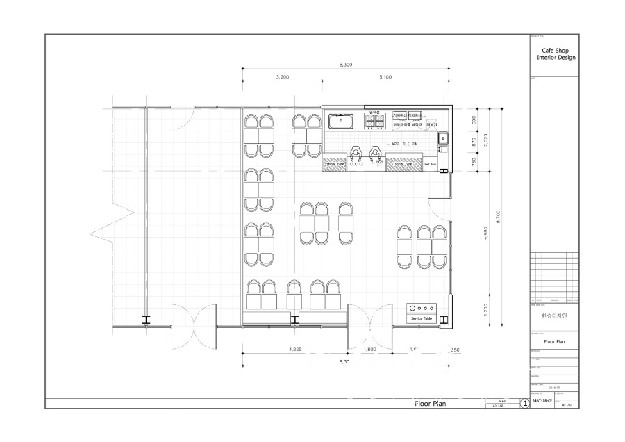
안녕하세요 투시도 프리랜서 Ivy CG 입니다.
어제 올린 투시도에 대한 도면 작업을 진행한것 입니다.
평면도 작업진행입니다.

| 비즈니스센터 소형사무실 도면 (0) | 2021.05.21 |
|---|---|
| 쌍용자동차 차량 전시대 인테리어 투시도 (0) | 2021.05.14 |
| 원룸형 오피스 인테리어 디자인 작업 도면 (0) | 2021.05.11 |